风淋设备
当前位置:首页 >> 风淋设备系列 >> 正文风淋设备(又名风淋室、风淋房、风淋门、空气吹淋室、风淋机之类)是人员进出无尘室所必需的通道,并同时起到气闸室密闭无尘室的缓冲作用,是进行人员除尘和防止室外空气污染无尘室的有效设备,也是目前净化车间人员通的必需设备。
风淋设备分类:
风淋设备根据吹淋方式可分为:单人单吹风淋设备、单人双吹风淋设备、单人三吹风淋设备、双人双吹风淋设备、多人双吹风淋设备、 智能语音风淋设备、全自动风淋设备、快速卷帘门风淋设备、不锈钢风淋设备等;
风淋设备价格根据箱体材质不同可分为:
全不锈钢风淋室设备,外冷板内不锈钢风淋室设备,冷板烤漆风淋室设备,外冷板内不锈钢风淋设备。
风淋设备应用领域:
风淋设备广泛应用于电子、汽车制造、制药化工、生物、食品、医院等各种洁净厂房和实验室。
风淋设备工作原理:
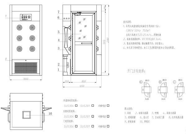
风淋设备经有隔板高效过滤器与无隔板高效过滤器过滤后的洁净气流由可旋转喷嘴从各个方向喷射至人身上,从而有效而迅速地清除尘埃粒子。清除后的尘埃粒子再经由初、高效过滤器过滤后重新循环到风淋区域内。为了达到吹淋的最好效果,风淋设备设计的喷嘴出风口风速能达到25m/s以上,吹到人身上的风速最低18m/s,出厂的初始风淋时间设置为15秒风淋房提供了模块化的组装方式,可以按实际需要拼装成各种长度的风淋尺寸。
风淋设备结构特点:
>>自动化控制:系统采用PLC智能化的控制手段,控制面板上LED显示屏可正确显示风淋的运行状态、双门的互锁状态、风淋周期进度和延时开门状态。并设有光电感应器,单向通道风淋室,从非洁净区进入,关门后红外线感应有人就吹淋,吹淋后入门锁闭,只能从出门走出风淋设备;
>>人性化操作:人性化的控制面板设计,清晰的指示灯指示,给予用户清晰正确的风淋流程指示。软键触按式时间继电器,LED显示及设置吹淋时间,范围在10-99s可调,用户可根据风淋室外部环境的差异调节吹淋时间;
>>高洁净度、高风速:采用初效过滤器、高效过滤器两级过滤系统,无隔板高效过滤器低阻力高效过滤器,过滤效率为:99.99%,确保净化级别。配全不锈钢多角度可调喷嘴,双涡壳外转子大风量低噪风机,风嘴出风口风速高达25m/s以上,吹到人体上风速18m/s以上。
>>模块式结构: 风淋设备箱体采用模块化设计方案,可以按实际需要拼装成各种长度的风淋尺寸。一台风淋设备由一节或多节风淋单元组成,对于大体积的风淋设备,可分拆成多个模块,使得生产、运输、安装特别方便、快捷;
>>高性能、高密封:采用进口电子元器件,运行性能稳定可靠 ,先进的减噪静音装置系统及采用EVA密封材料,密闭性能高。
风淋设备基本配置参数:影响风淋设备价格原因:
1、风淋喷嘴:360度可旋转式嵌入安装镜面不锈钢喷嘴,12只,左右两侧分布,吹风方向可旋转;
2、净化风机:专用净化离心低噪音风机,2台,风量:2000风量/小时;
3、吹淋风速:双侧吹风,25-30m/s,大风速保证吹淋效果;
4、吹淋时间:LED液晶蓝屏显示吹淋时间,(0-99s可调);
5、控制系统:PLC系统,程序可根据要求定制,带OTS故障显示功能(故障代码直接在屏幕上显示);
6、 控制面板:控制面盘软触点控制开关,带键盘暗锁保护,可有效防止员工随意设置;
7、光电开关:欧姆龙(OMRON)光电开关,型号E3F3-R61,12-24VDC电源,自动感应吹淋,智能温馨中文语音提示系统;
8、 过滤效率:三级过滤,初中效预过滤器45%(5um),数量2只,600*350*10mm,可清洗可更换,初效过滤器为风淋室主板;
9、 高效过滤器99.99%(0.3um)过滤效率,数量2只,规格600*600*120mm,过滤器安装平整、牢固,过滤器与框架以及框架与壁板之间无漏缝,高效过滤器与框架之间采用EVA密封条密封;
10、箱体主材:内外1.2mm的冷轧钢板烤漆,表面经过酸洗、磷化、去油去锈、高温烘烤而成;(可选)
箱体主材:内外1.2mm的SUS304不锈钢制作,表面经过拉丝或断丝处理,食品级专用,304不锈钢广泛应用于电梯装饰、厨房电器产品;(可选);
11、密封性能:制作精细,美观大方。采用拼装式结构,接缝处要求加垫密封条,整体设备安装完毕后内部无漏光漏风现象。
12、 双门:材质为全不锈钢(SUS304),上部带3C认证钢化玻璃视窗,下部为不锈钢平面处理,无凹凸棱角,减少死角;三道3MM厚度不锈钢铰链,保障门结实耐用,门与门框结合平整、牢固、美观,密封性能良好,门开启灵活。
13、闭门器:采用德国“多玛Dorma”闭门器,型号:TS68,数量2只,手动开门,自动关门;(备注:多玛闭门器是肯德基门店专用闭门器);
14、双门电子联锁:风淋时两扇门同时闭锁,时间未到无法打开,保障强制员工吹淋;平时电子互锁,只可打开其中的一扇门;双门电锁为电控锁”力士坚LCJ“EC200型号阴级电插锁,数量:2副;
15、 照明:嵌入式LED照明灯1只*2W ,节能环保;照明带延时功能,即智能温馨又节约能源;
16、电源:380V 50Hz(可为客户非标私人定制110V,460V,60Hz等非标电压频率风淋设备);
17、 电器元件:空气开关:施耐德空气开关DN63;接触器:施耐德接触器5S-3510;热继电器:施耐德热继电器RS-25A;电器元件,风淋优秀品质保障;
18、不锈钢拉手:采用对接式不锈钢拉手,坚固耐用;采用美国”道康宁“密封胶密封,环保无异味;
19、安全措施:内部安装有红色”急停“按钮,紧急情况下按下按钮,系统断电双门可同时打开利于逃生;
20、功率:1.1Kw;重量:约350Kg
21、适用人数:1-2人(建议标准人数为1人)。
可按客户要求定做非标准风淋设备。